Preis auf Anfrage
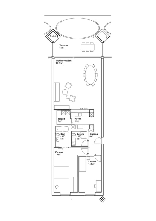
Helle und gemütliche 1.5‑Zi-Wohnung
Adresse auf Anfrage, 6314 Unterägeri
- Array
- 1.5 Zimmer
- 140 m2
- Objekttyp Wohnung, Flach
- Zimmer 1.5
- Wohnfläche 140 m2
Wohnen mit Stil im Herzen von Unterägeri Diese hochwertige Wohnung überzeugt durch ihre zentr…




































































































































































