3'410
CHF
/Monat
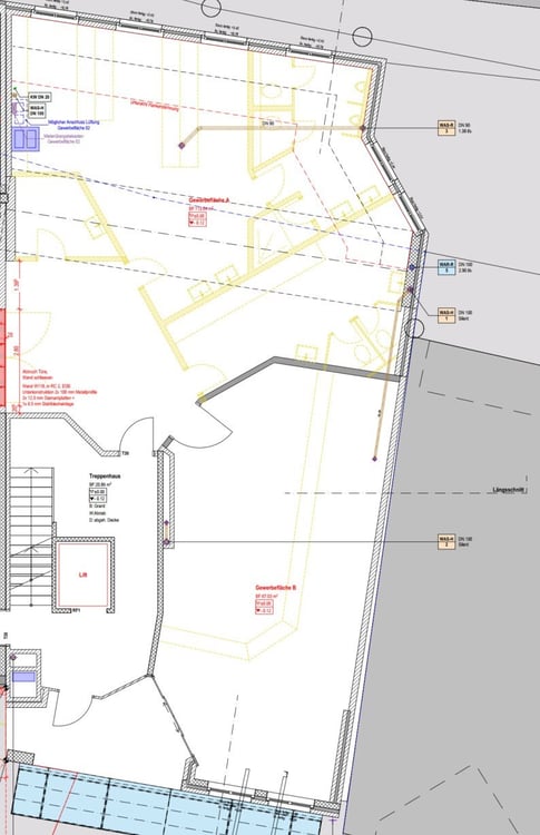
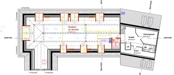
Moderne Bürofläche an zentraler Lage – …
Baslerstrasse 15, 4310 Rheinfelden
- Array
- 150 m2
- Objekttyp Büro
- Wohnfläche 150 m2
- Etage
An zentraler und gut erschlossener Lage in Rheinfelden vermieten wir ab 01.03.2026 eine attraktive …

































