650
CHF
/Monat
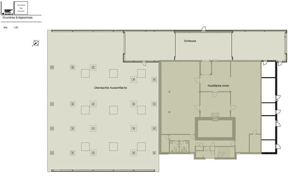
Raum für Ihre Vision Studio im Terrass…
Hennelistrasse 10, 4625 Oberbuchsiten
- Array
- Objekttyp Geschäft, Atelier
Wir vermieten per sofort einen vielseitig nutzbaren Raum mit 12 m² in einem schönen Terrassenhaus …





























































































































