330
CHF
Friesenberg75 - Arbeit. Erfolg. Zukunft.
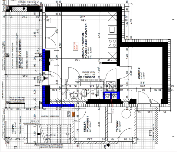
Friesenbergstrasse 75, 8055 Zürich
- Array
- Objekttyp Büro
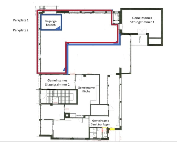
- Vielfalt. Raumbereiche kombinieren und gemischte Nutzung fördern
- Kurze Distanzen. E…












































































































































