3'810
CHF
/Monat
Modernes 1.5-Zimmer-Einfamilienhaus in …
Adresse auf Anfrage, 3274 Hermrigen
- Array
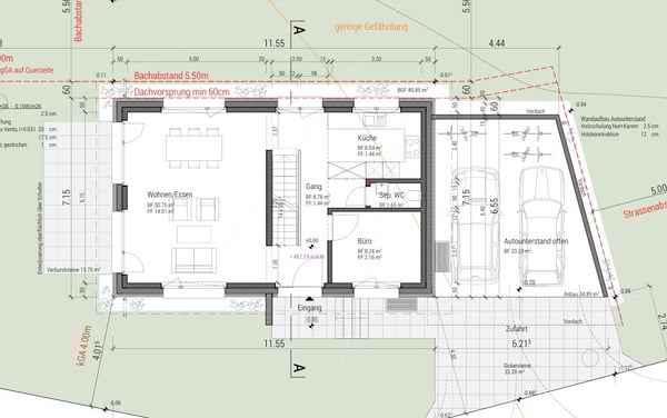
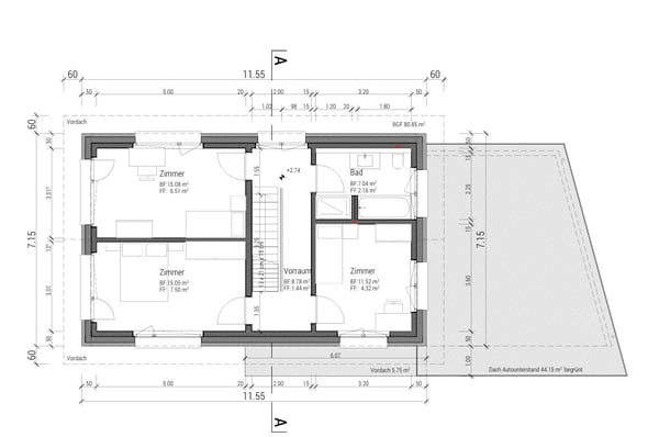
- 1.5 Zimmer
- 150 m2
- Objekttyp Wohnung, Einzelhaus
- Zimmer 1.5
- Wohnfläche 150 m2
- Etage
Sie haben die Möglichkeit zum Kauf, Miete-Kauf, oder einfach zur Miete mit langfristigem Mietvertra…



















































































































































































































































