550
CHF
/Monat
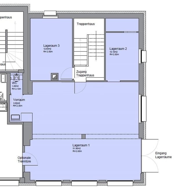
Lagerräumlichkeit zu vermieten
Industriestrasse 200, 4600 Olten
- Array
- Objekttyp Verkauf, Lager
Wir vermieten einen Lagerraum im Industriegebiet der Stadt Olten. Der Raum verfügt über eine Steckd…










































































