3'690
CHF
/Mois
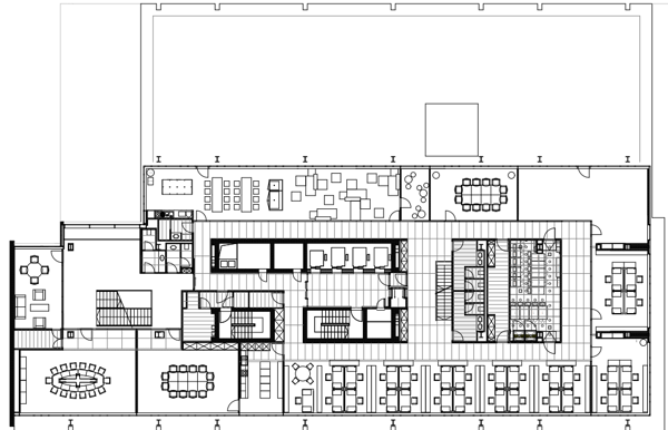
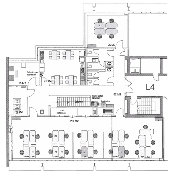
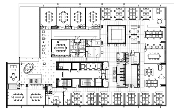
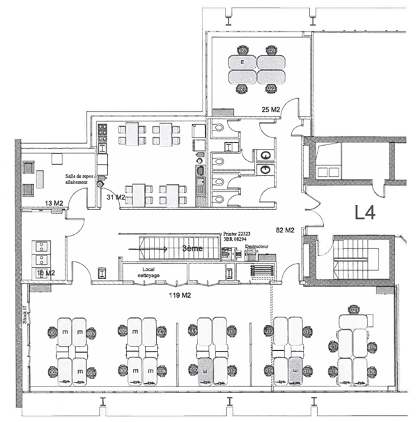
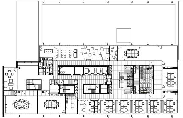
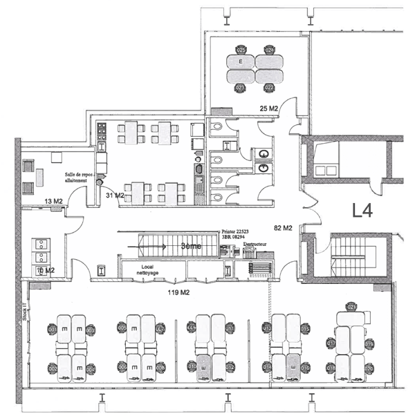
Bureau de standing à louer à Genève
Adresse sur demande, 1204 Genève
- Array
- 1 Pièces
- 13 m2
- Type d'objet Bureau
- Pièces 1
- Surf. habitable 13 m2
Agence : Millenium Properties SARéf : SH 2121Bureaux de haut standing situés au RDC d'un immeuble c…































































































































