240
CHF
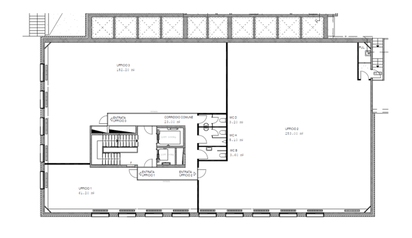
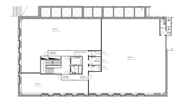
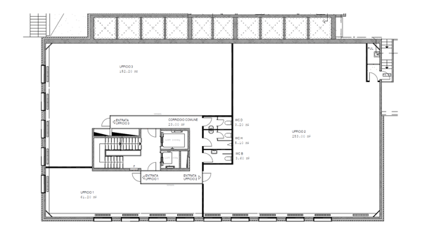
Nuovo spazio commerciale con vetrine
Via degli Albrici 3, 6830 Chiasso
- Array
- Type d'objet Vente au détail, Commercial
In questo nuovo complesso affittiamo al piano terra spazio ad uso commerciale con vetrine e locale …
















































































