
19
CHF
/Mois
Platz für Ihr Hobby
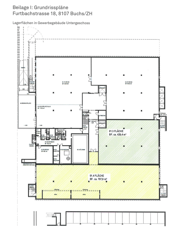
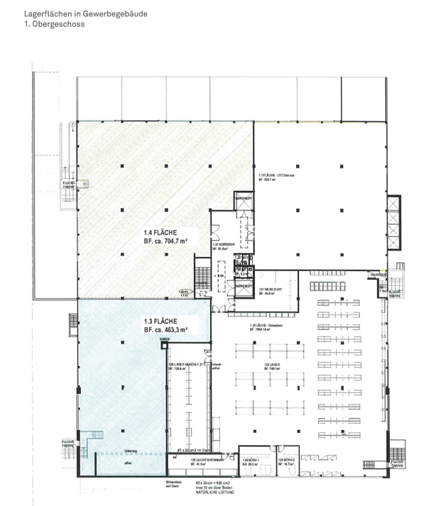
Rosengartenstrasse 13, 8107 Buchs ZH
- Array
- Type d'objet Vente au détail, Dépôt
DAS WICHTIGSTE
- Zugang via Treppe (kein Lift)
- Beliebtes Wohnquartier…













