2'390
CHF
/Mese
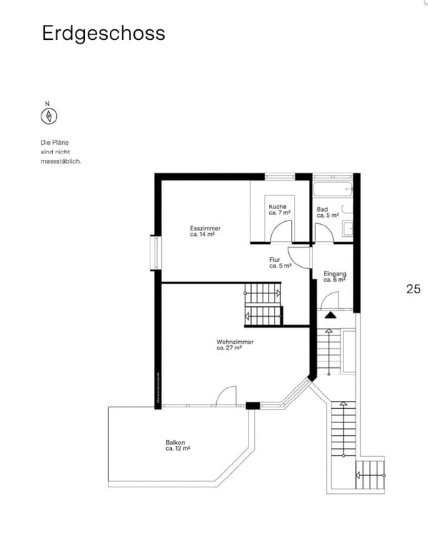
Charmantes EFH mit Berg- und Seesicht u…
Sunnerainstrasse 12, 6353 Weggis
- Array
- 1.5 Locali
- 120 m2
- Tipo di oggetto Casa, Casa unifamiliare
- Locali 1.5
- Sup. abitabile 120 m2
- Piano
Das Einfamilienhaus verfügt über rund 120 m2 Nutzfläche und zeichnet sich durch einen weitläufigen …



















































































































































































































































