1'421'880
CHF
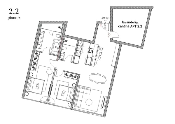
2,5 Locali in Nuovo Progetto residenzia…
Via Tesserete 64, 6900 Lugano
- Array
- 1.5 Locali
- Tipo di oggetto Appartamento, Appartamento
- Locali 1.5
WWW.RESIDENZAMIRADOR.CHLa Residenza Mirador è il nuovo progetto architettonico-residenziale della N…
































































































































































































































































