Price on request
Einmalige Gelegenheit: Traumhafte Loft …
Wehntalerstrasse 17, 8057 Zürich
- Array
- 2 Rooms
- 200 m2
- Object type Apartment, Loft
- Rooms 2
- Living space 200 m2
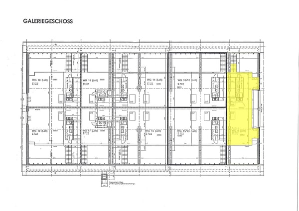
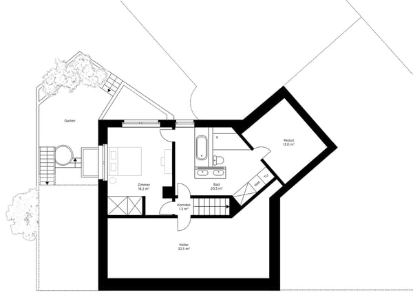
Per sofort oder nach Vereinbarung verkaufen wir diese außergewöhnliche Loft (gesamt ca. 268m²) an d…



































































































































