3'210
CHF
/Month
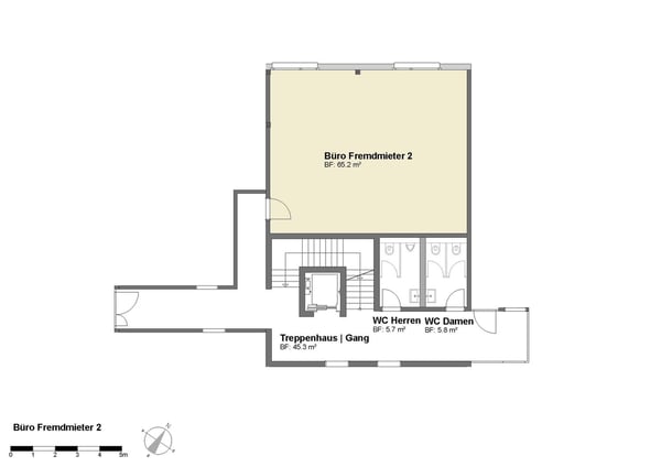
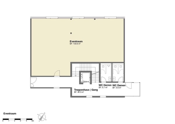
MODERNE, HELLE RÄUMLICHKEITEN
Address on request, 7013 Domat/Ems
- Array
- 1 Rooms
- Object type Office
- Rooms 1
Diese modernen Räumlichkeiten in Domat/ Ems bieten alles was Ihr Herz begehrt und eignen sich beste…

















































































































































