4'410
CHF
/Month
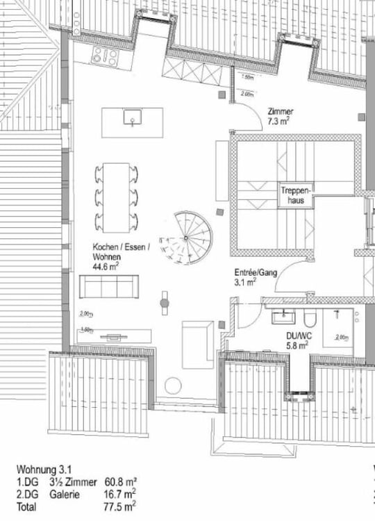
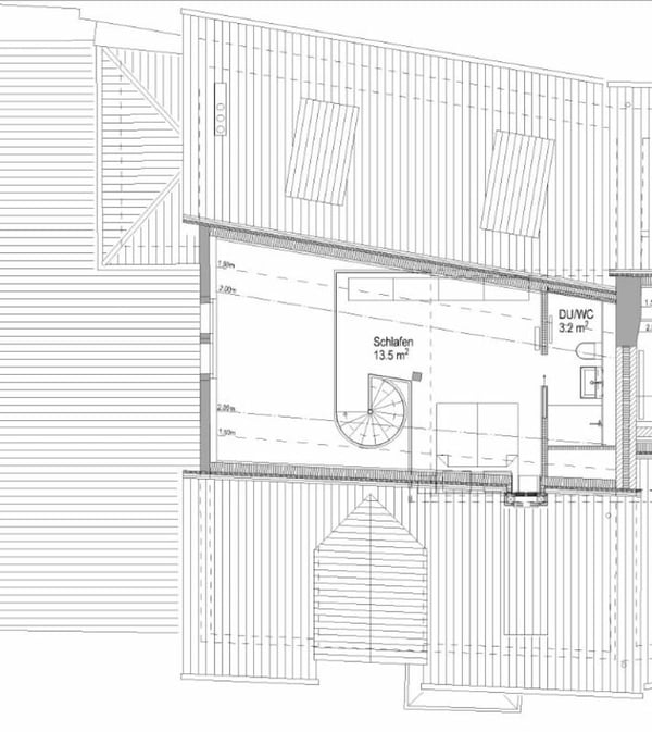
FRISCH RENOVIERT AN ZENTRALER LAGE
Address on request, 5405 Dättwil AG
- Array
- 8.5 Rooms
- 190 m2
- Object type Apartment, Roof flat
- Rooms 8.5
- Living space 190 m2
Diese frisch renovierte Wohnung bietet einen lichtdurchfluteten Wohnbereich und Balkon. Der Parkett…




























































































































































