910
CHF
/Month
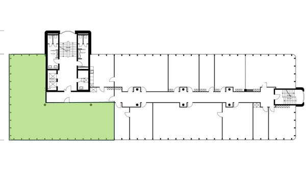
Bürofläche im Colors, Buchs ZH zu vermi…
Mülibachstr. 42/Haus O, 8107 Buchs ZH
- Array
- Object type Office
Wir vermieten per sofort oder nach Vereinbarung diesen Büroraum im 4. OG mit 36m2 im Wohn- und Gewe…



















