260
CHF
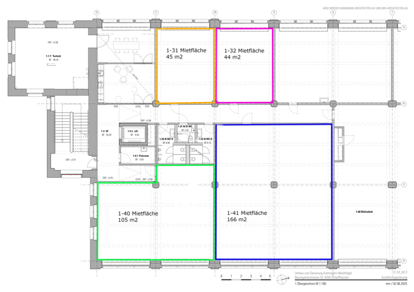
Zentral gelegene Ladenfläche
Bachstrasse 25/27, 8200 Schaffhausen
- Array
- Object type Retail, Shop
An zentraler Lage in Schaffhausen vermieten wir eine vielseitig nutzbare Ladenfläche an der Bachstr…




















































































































































































