Price on request
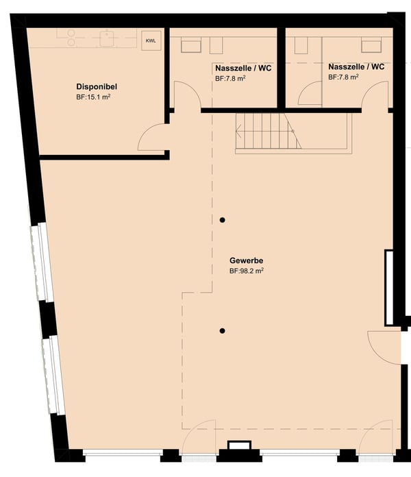
Attraktive Ladenfläche im Einkaufszentr…
Schaffhauserstrasse 152, 8400 Winterthur
- Array
- Object type Retail, Commercial, Hairdresser
Suchen Sie eine repräsentative Gewerbefläche in einem beliebten Einkaufszentrum (www.rosenberg.ch)?…















































































































































