Prix sur demande
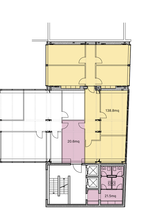
Prestigiosi spazi uso ufficio a Lugano
Via San Gottardo, 6900 Lugano
- Array
- 1440 m2
- Type d'objet Bureau
- Surf. habitable 1440 m2
- Etage
Grandi spazi uso ufficio a Lugano, in un edificio di particolare prestigio architettonico nel centr…


























































































































































