210
CHF
Surfaces de production à louer à Satig…
Rue des Sablières 4-6, 1242 Satigny
- Array
- Type d'objet Fabrique, Objet industriel
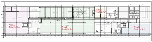
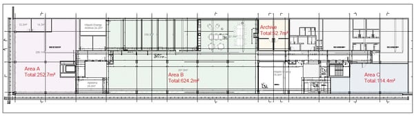
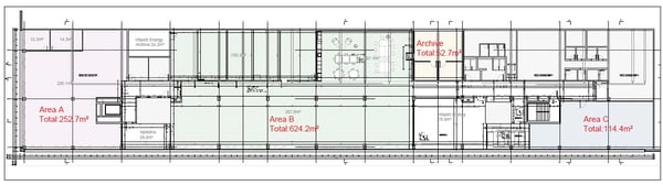
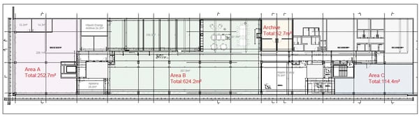
Locaux aménagés920 m2 de surfaces de production/stockageAscenseur/Monte-chargesBlocs sanitaires ave…






































































































































