4'690
CHF
/Mois
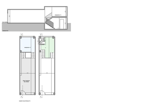
Grande ufficio in centro a Lugano
Adresse sur demande, 6900 Lugano
- Array
- 2 Pièces
- 220 m2
- Type d'objet Bureau
- Pièces 2
- Surf. habitable 220 m2
Proponiamo in affitto un ufficio con superficie di c.a. 220 mq al terzo piano di una palazzina ubic…






























































































































