2'706'000
CHF
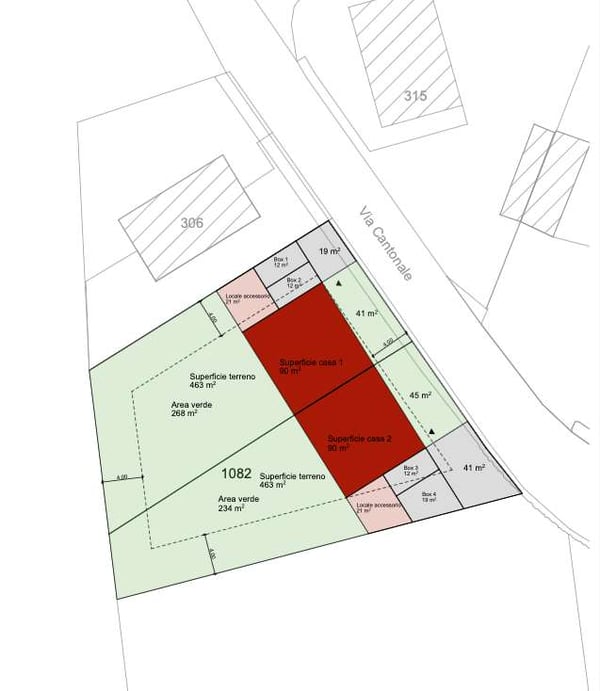
Ampio terreno con licenza per 4 case un…
Indirizzo su richiesta, 6822 Arogno
- Array
- 2 Locali
- Tipo di oggetto Plot, Terreno edificabile
- Locali 2
Terreno edificabile ad Arogno con licenza edilizia già approvata per la realizzazione di quattro ca…























































































































